For Sale
House

You're Invited to... Elevated Living with River & City Views

OFF MARKET OPPORTUNITY
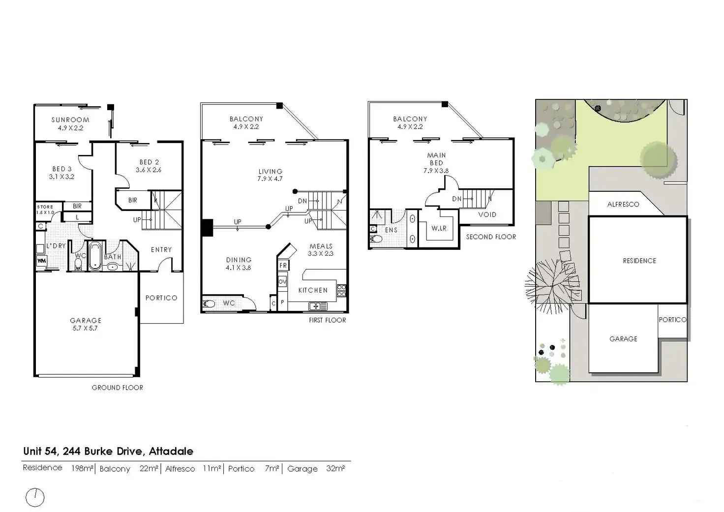
  • 3 Bedrooms | 2 Bathrooms | 285 Square metres | 2 Car spaces

Positioned in a prized end setting within the tightly held Pelican Cove estate, this immaculate home delivers a unique three-level townhouse with panoramic river and city views. Occupying a standout corner position, this home offers exceptional privacy, a flexible floorplan, and multiple spaces to relax or entertain - all within a secure, resort-style complex.

The ground floor features two well-separated bedrooms, a central bathroom, a sunroom, laundry, and direct access to a private backyard surrounded by lush gardens. Upstairs, the first floor is dedicated to expansive open-plan living, dining and kitchen areas, flowing onto a full-length balcony designed to capture the stunning outlook. The top level is reserved for a spacious master retreat with an ensuite, complete with its own balcony showcasing breathtaking north-facing views.

Designed for easy living and entertaining, the home combines functionality with lifestyle, enhanced by multiple indoor and outdoor zones and quality inclusions throughout.

Pelican Cove is renowned for its secure gated entry, beautifully maintained gardens, and access to riverside walking and cycling paths. Located in the heart of Attadale, this is a premium lock-and-leave lifestyle offering convenience, privacy, and a true sense of community in one of the area's most sought-after waterfront enclaves.

Property Features:
• Two large balconies with river and city views
• Ground floor sunroom and private yard with established gardens
• Spacious master retreat with balcony and sitting area
• Remote double garage and large garden shed
• Gated estate with intercom, caretaker and direct pool access
• Reverse cycle air conditioning and multiple split systems
• Ducted vacuum system and solar panels
• Whole-house water filtration system with reverse osmosis
• Daylight one-way glass enclosure on the side of the garage
• Water usage, reticulation maintenance, lawn mowing included in strata fees
• Corner position with added privacy and large landholding

For more information, contact Nicola Fleet on 0403 969 227 or [email protected].

Rates & Local Information
Strata Levies: $1,772.55 p/q
Water Rates: $1,550.47 (2024/25)
City of Melville Council Rates: $2776.01 (2025/26)
Zoning: R30
Primary School Catchment: Attadale Primary School
Secondary School Catchment: Melville Senior High School

PLEASE NOTE: While every effort has been made to ensure the given information is correct at the time of listing, this information is provided for reference only and is subject to change. It is recommended that you conduct your own due diligence before making any decisions based on this information.

Location


Mint Real Estate offers services exclusively in the Perth, Western Australia metropolitan area.
© 2023 - 2026 | Mint Real Estate , All Rights Reserved | Privacy Policy. Powered by Proptech Group